Tipo immobile:
Villa Singola
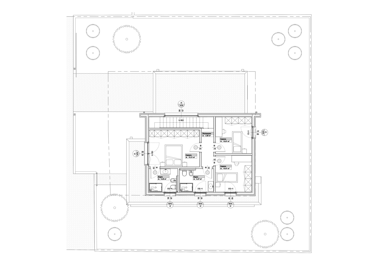
Numero locali:
4
Mq:
205
Cucina:
abitabile
Soggiorno:
si
Bagni:
3
Camere da letto:
3
Posto auto:
Posto cicli e motocicli:
esterno
Balcone:
-
Piano:
piano terra
di n°2 piani
Arredato:
non arredato
Stato immobile:
nuovo
Spese cond.:
nessuna
Cantina:
-
Ascensore:
-
Ingresso:
0
Giardino:
di proprietà di 300 mq
Terrazzo:
-
Portico:
-
Riscaldamento:
autonomo a pavimento
Tipo riscaldamento:
metano
APE:
A4
Condizionatore:
-
Satellite:
-
Anno Costruzione:
2025
Idromassaggio:
-
Piscina:
-
Vista mare:
-
Solaio:
-
VISUALIZZA SULLA MAPPA
Cascina Colombara, Saronno, Varese, Lombardia, 21042, Italia
Villa Singola con giardino










