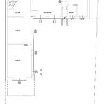
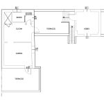
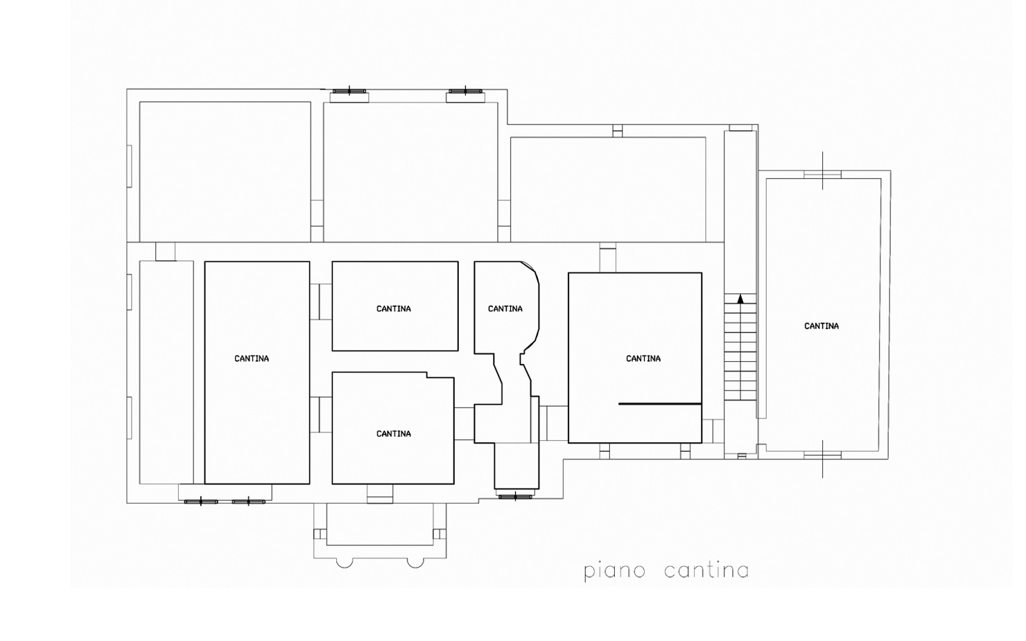
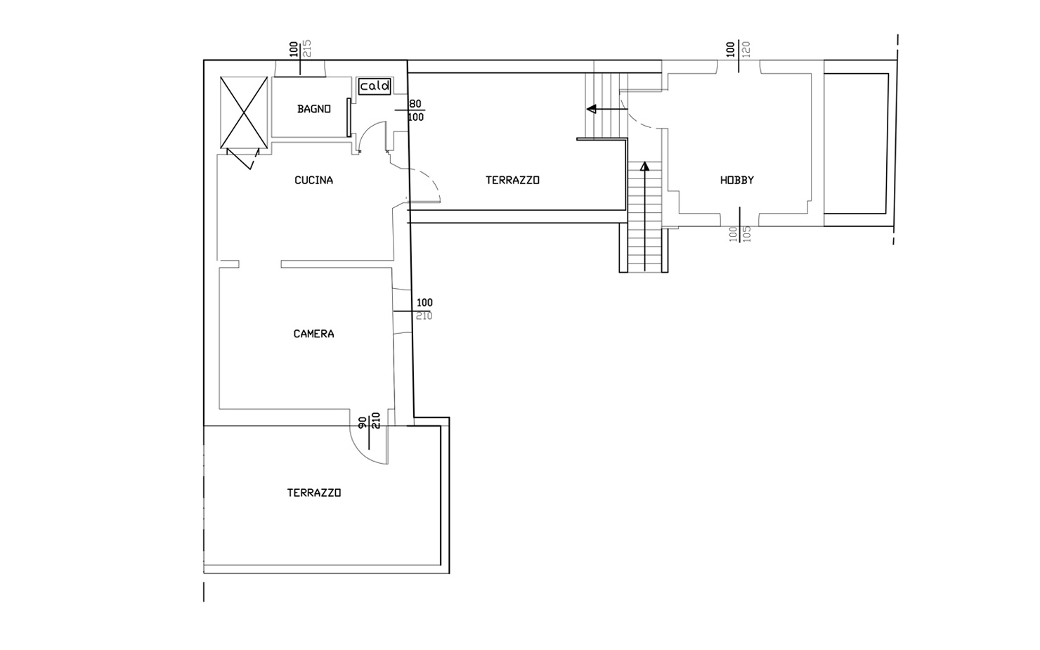
Tipo immobile:
villa
Numero locali:
16
Mq:
765
Cucina:
abitabile
Soggiorno:
doppio
Bagni:
5
Camere da letto:
6
Posto auto:
posto interno
Posto cicli e motocicli:
interno
Balcone:
2
Piano:
su più livelli
di n°4 piani
Arredato:
non arredato
Stato immobile:
discreto
Spese cond.:
nessuna
Cantina:
Ascensore:
-
Ingresso:
Sì
Giardino:
di proprietà di 900 mq
Terrazzo:
3
Portico:
Riscaldamento:
autonomo
Tipo riscaldamento:
metano
APE:
G
Condizionatore:
Satellite:
Anno Costruzione:
1930
Idromassaggio:
-
Piscina:
-
Vista mare:
-
Solaio:
VISUALIZZA SULLA MAPPA
Via Bernardino Lanino, Stella, Santuario, Saronno, Varese, Lombardia, 21047, Italia
Villa Centro Saronno





























